


3062 MA, ROTTERDAM
Betreft
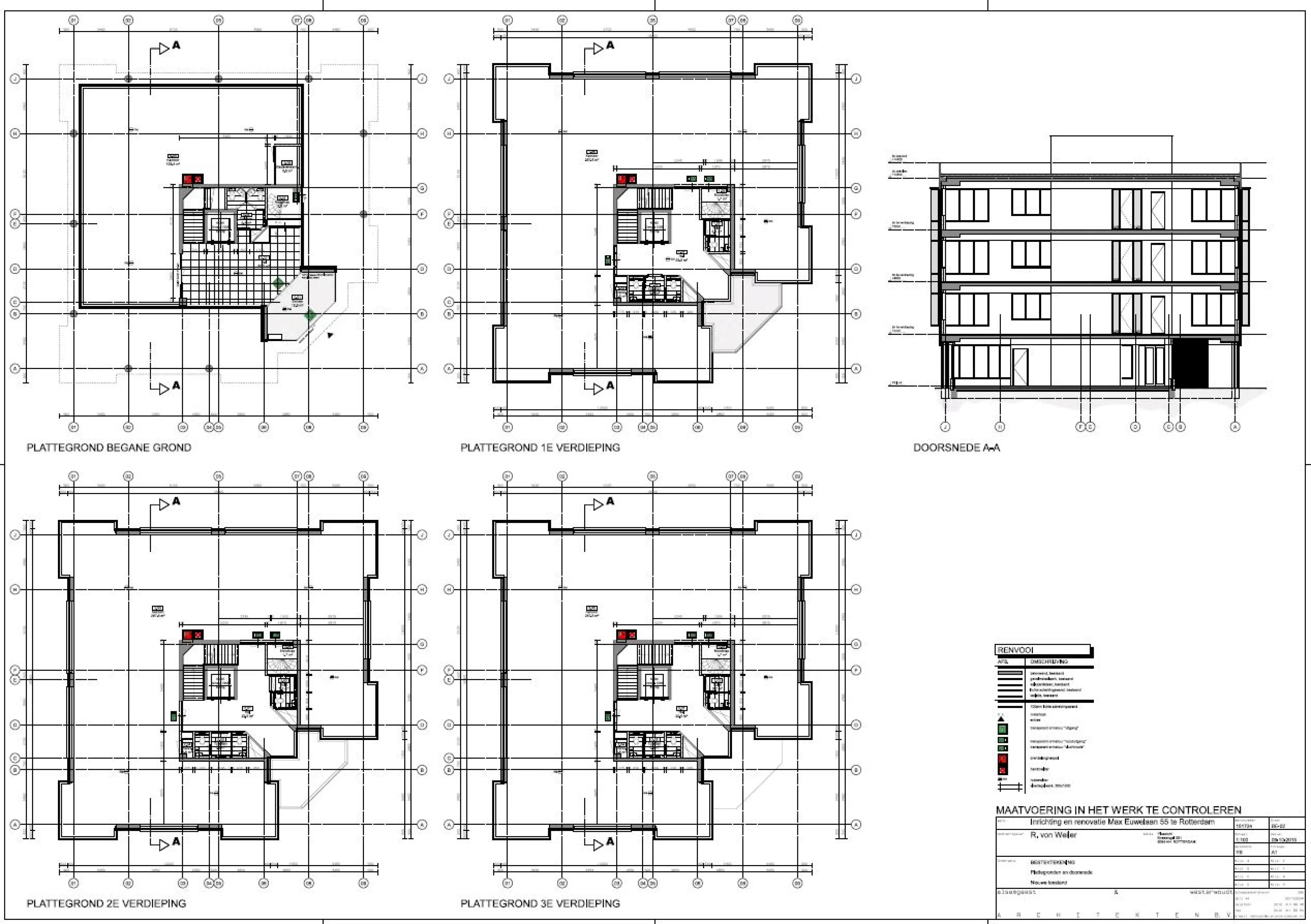
Verzorgde en zelfstandige kantoorverdieping voor verhuur beschikbaar van ca. 317 m², gelegen op de 3e verdieping in een kleinschalige kantoorvilla. Het pand heeft een tuin met terras en een eigen parkeerterrein. De kantoorvilla beschikt over een prachtige ruime centrale entree met lift en uitstekende koeling. Het object is met aandacht voor details ontwikkeld als Nederlandse HQ van modehuis Christian Dior, onderdeel van LVMH, dat er jaren was gevestigd. Het kantoorgebouw ligt in een volgroeide groene setting in Brainpark I, tegenover de Erasmus Universiteit aan de Rijksweg A16, naast bus en metrostation P+R Kralingse Zoom in Rotterdam-Kralingen.
Wat maakt deze kantoorvilla bijzonder ten opzichte van anderen?
Zijn ligging, kleinschaligheid, indeelbaarheid en uitstekende parkeermogelijkheden!
• De mooiste plek van het gebied. Tegenover en met vrij uitzicht op de vijver, midden in het groen en ook goed herkenbaar vanaf de toegangsweg de Kralingse Zoom.
• Geen trappenhuis waar meerdere verdiepingen op uitkomen. Dat maakt royale open verdiepingen mogelijk, waar je kunt rondlopen met daglicht en uitzicht aan alle zijden. Een van de weinige kleine kantoorvilla’s op Brainpark met een centrale kern met lift en trap.
• Door efficiënte maatvoering ook in te delen met aparte vergaderruimten en/of als kamerkantoren.
• Gebouwd met bijzondere details, hogere plafonds, natuursteen, de uitkragende raampartijen die een aparte sfeer geven, met name binnen.
• Aangelegde tuin met mogelijkheid buiten te zitten etc.
• In totaal 27 eigen parkeerplaatsen op eigen terrein met daarbij veel parkeermogelijkheden op de Max Euwelaan.
• Horeca en andere voorzieningen van de EUR op loopafstand.
• Bushalte naast de deur en Kralingse Zoom op loopafstand.
Ligging en bereikbaarheid
Brainpark I bestaat merendeels uit middelgrote kantoorgebouwen, gegroepeerd langs de rustige Max Euwelaan en K.P van der Mandelelaan. Bereikbaar vanaf de Kralingse Zoom. Hotel/vergadervoorzieningen op loopafstand in het Novotel Brainpark. Brainpark l is met de auto gemakkelijk te bereiken, zowel vanaf de A16 als vanuit het centrum. Ook per openbaar vervoer uitstekend bereikbaar door de korte loopafstand van het OV knooppunt Kralingse Zoom met metro- en busstation. De Erasmus Universiteit beschikt over diverse, met name horeca maar ook repro, voorzieningen waar gebruikers van het Brainpark gebruik van kunnen maken. Er is een “foodcourt” aanwezig met o.a. Starbucks en (biologische) lunchroom.
Oppervlakte
3e verdieping: ca. 317 m² kantoorruimte.
Parkeren
Bij de kantoorvilla behoort een met een slagboom af te sluiten parkeerterrein, met in totaal 27 parkeerplaatsen, wat neerkomt op een goede parkeernorm van 1 plaats per circa 42 m². Ook is er ruime (betaalde) parkeergelegenheid langs de openbare weg.
Thans zijn er nog ca. 8 parkeerplaatsen beschikbaar.
Huurprijs
Kantoorruimte:
€ 165,- per m² per jaar, exclusief BTW en servicekosten (€ 52.305,- per jaar, excl. BTW).
Parkeerplaatsen
€ 1.000,- per plaats per jaar, exclusief BTW.
Huurtermijn
5 jaar, met aansluitende verlengingsperioden van telkens 5 jaar, maar andere en/of flexibele huurtermijnen zijn bespreekbaar.
Datum van oplevering
In overleg, op korte termijn mogelijk.
Energielabel
Het gebouw is voorzien van energielabel A.
Servicekosten
€50,- per m² (inclusief energiekosten) v.v.o. per jaar, exclusief BTW als verrekenbaar voorschot.
Staat van oplevering
• Representatieve entree;
• Brandmeld-/ontruimingsinstallatie;
• Personenlift;
• Pantry aansluiting per bouwlaag;
• Gescheiden toiletgroepen;
• Prima vrije hoogte in de kantoren (hoger dan de gebruikelijke 2.60 m1);
• Te openen ramen;
• Centrale verwarming in hoofdzaak via convectoren;
• Mechanische luchtbehandeling met topkoeling;
• Kabelgoten met databekabeling (cat. 6A) en elektraaansluitingen;
• Bestaand hoogwaardig inbouwpakket inclusief indeling in meerdere kantoorkamers, pantry, vloerafwerking, systeemplafond met verlichting etc.
Bankgarantie
Huurder dient aan verhuurder een onherroepelijke ROZ-bankgarantie te stellen of waarborgsom te storten ter grootte van drie maanden huur, servicekosten alsmede de hierover verschuldigde omzetbelasting.
Huurindexering
Jaarlijks, op basis van de wijziging van het prijsindexcijfer volgens de Consumentenprijsindex (CPI) reeks CPI-Alle Huishoudens (2015=100), gepubliceerd door het Centraal Bureau voor de Statistiek (CBS).
Omzetbelasting
Verhuurder wenst te opteren voor BTW-belaste huur en verhuur. Ingeval huurder niet aan de gestelde criteria voor belaste verhuur voldoet, wordt de huurprijs verhoogd ter compensatie van de gevolgen van het vervallen van de mogelijkheid om te opteren voor BTW-belaste huur.
Huurovereenkomst
Huurovereenkomst op basis van het standaard model van de Raad voor Onroerende Zaken (ROZ), versie februari 2015, met de daarbij behorende algemene bepalingen.
